Visualisierung Gästehaus, Sophienhöhe 3, Kerpen © SNK architekten · ingenieure

Hotel Villa Sophienhöhe

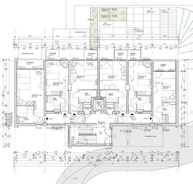
Gästehaus mit 18 Hotelzimmern und Seminarräumen zur Erweiterung des Hotels Villa Sophienhöhe
In der weitläufigen Parkanlage des unter Denkmalschutz stehenden Hotels Villa Sophienhöhe (erbaut im Jahr 1899) ist die Errichtung eines Gästehauses mit 18 Hotelzimmern, davon 2 Junior-Suiten, und modernen Seminarräumen geplant. Der Neubau soll in einem respektvollen Abstand zum Denkmal errichtet werden und über eine zurücknehmende Architektur verfügen. Die zum Park weisende Fassade verfügt über eine hohe Transparenz, welche den Hotelbesuchern den Blick in die Natur und auf die Villa Sophienhöhe ermöglicht. Die teils verputzten und teils verklinkerten Fassadenflächen des Gästehauses greifen die Materialien der angrenzenden Gebäude auf, so dass sich die Architektur harmonisch in die nähere Umgebung einfügt.